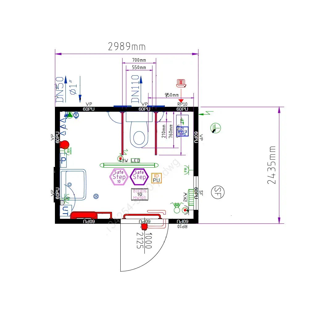
Malý kontajner vhodný pre osoby na invalidnom vozíčku ponúka najmodernejšie zázemie v rámci sanitárnych služieb, vrátane bezbariérového prístupu, zabezpečenie eurokľúčom alebo SOS signalizáciou.
Pozrite si, čo je možné k tomuto produktu pridať
Sanitárny kontajner pre invalidov
Na čo sa najčastejšie pýtajú naši zákazníci?
Áno, v rámci prenájmu našich toaliet poskytujeme aj pravidelný servis v dohodnutých intervaloch. Vieme zabezpečiť servis aj vašich vlastných toaliet.
Pri objednávaní akéhokoľvek produktu na zimu je dôležité brať do úvahy možné zamrznutie vody. S odpovedajúcou izoláciou a tepelnou ochranou vodovodného potrubia a odpadov však možno prenajať akýkoľvek náš produkt. V kategórii mobilných kabín odporúčame model „SPORT“, pretože neobsahuje časti, ktoré by mohli zamrznúť.
Samozrejme! JOHNNY PAIR je navrhnutý práve pre tieto situácie. Ak by ste si však s týmto nechceli lámať hlavu, radi vám zabezpečíme aj dopravu.
Medzi naše veľmi populárne produkty patria napríklad sanitárne kontajnery, ktoré dokážu svojou kapacitou nahradiť veľké množstvo mobilných toaliet a umožňujú aj pripojenie na vodovod a odpady, čo ušetrí prostriedky za servis toaliet. Naši zákazníci si tiež obľúbili produkty sanitárnych prívesov, ktoré sú jednoduché na manipuláciu a prevoz na miesto konania vašej akcie. Ako kontajnery, tak prívesy nastavujú novú úroveň kvality poskytovaných služieb.
Všetky naše prémiové kabíny nájdete priamo na našom e-shope GO1, kde môžete využiť našu predpripravenú kalkulačku, ktorá vám odporučí vhodný počet toaliet. Na GO1 si následne môžete toalety objednať online na svoju akciu. Rovnako sa neváhajte obrátiť na našich skúsených obchodných poradcov, ktorí vám odporučia nielen počet toaliet, ale aj všetky potrebné doplnky a prípadne vám odporučia alternatívne riešenie priamo na mieru vašim požiadavkám.
Áno, naše prémiové kabíny vám vieme ponúknuť ako na prenájom, tak na priamy predaj. Ak vás niektorý z modelov zaujal, neváhajte sa obrátiť priamo na našich obchodných zástupcov.
Tieto produkty sú veľkokapacitné a ponúkajú vysoký štandard služieb práve vďaka pripojeniu na vodovodné a odpadové služby. Nie je preto možné zabezpečiť funkčný prevádzkový režim bez týchto vstupov a výstupov. Odpadové produkty sme schopní skladovať napríklad vo fekálnom tanku, ktorý si u nás môžete taktiež prenajať. Naši obchodní zástupcovia tiež dokážu navrhnúť riešenie prenájmu kontajnerov alebo prívesov aj bez priameho prístupu k vodovodnému vedeniu.
Áno, vieme zabezpečiť aj prenájom čerpadiel, ktoré svojou kapacitou dokážu zabezpečiť bezproblémový chod vašej akcie.




Za účelom poskytnutia čo najlepších služieb, využívame k ukladaniu a/alebo prístupu k informáciám súbory cookies. Súhlas s používaním tejto technológie nám umožňuje spracovať údaje, ako je napr. prezeranie si stránok na tomto webe, apod. Nesúhlas alebo odvolanie súhlasu môže nepriaznivo ovplyvniť určité vlastnosti a funkcie webu. Kliknutím na tlačítko Súhlasím môžete súhlas udeliť.
Nižšie môžete zvoliť, aké typy cookies môžeme spracovávať.
Technické cookies sú nepostrádateľné pre správne fungovanie tohto webu a nemôžu sa vypnúť. Viac informácií
Bez tohto typu cookies by web nebolo možné správne využívať. Jedná sa hlavne o pomocné hodnoty znázorňujúce Vašu voľbu, nastavenie a zobrazenie jednotlivých prvkov.
Skryť viac informácií
Analytické cookies nám pomáhajú sa neustále zlepšovať. Viac informácií
Tento typ cookies slúži napr. k analýze návštev, výkonu webu alebo reklamných kampaní. Získané dáta nie sme schopní spojiť s konkrétnym užívateľom a sú teda spracované hromadne na úrovni všeobecnej štatistiky.
Skryť viac informácií
Marketingové cookies používame my a naši partneri, aby sme Vám mohli ponúknuť relevantný obsah. Viac informácií
Pomocou marketingových cookies Vám môžeme zaistiť relevantnú ponuku. V prípade, že tento typ cookies nepovolíte, nezaistíte si, že sa Vám reklama už nebude ponúkať. Udelením súhlasu cookies zároveň súhlasíte s použitím dát na marketingové účely.
Skryť viac informácií